Hudson Place Residences launches with 327 units across eight layout types and zero 1-bedrooms. The 2-bedroom band absorbs 56% of inventory (105 units of 646sqft Premium plus 78 units of 689sqft + Study), and the 1,432sqft 4-bedroom Suite + Flexi with private lift is the largest non-penthouse layout — 19% bigger than anything Bloomsbury Residences offered on the adjacent plot. Three showflat virtual tours cover B3 (689sqft 2BR + Study), C4 (1,055sqft 3BR Premium + Study), and D2a (1,432sqft 4BR Suite + Flexi). Showflat opens 1 May 2026.
The Hudson Place Residences floor plan release is a message you can read before any price appears.
Out of 327 units, zero are 1-bedrooms. The 2-bedroom band absorbs 56% of inventory across two layout sizes. The largest non-penthouse layout — a 4-bedroom Suite + Flexi at 1,432 sqft — is bigger than anything Bloomsbury offered next door. And the development sits across two blocks of different heights, with the taller block carrying private lift access on selected stacks.
Eight layout types. Three budget bands. One clear target: investors who need rentable 2-bedrooms, upgraders who want a big 4-bedroom they can grow into, and downgraders trading down from landed without losing space. The middle 3-bedroom band is intentionally lighter. That is a positioning choice, not an oversight. This Hudson Place Residences review covers each layout in detail — floor plan dimensions, layout types, and what to verify when the showflat opens.
How We Review: The QPE Framework

Every review runs through our QPE framework — Quality, Price, Exit. The floor-plans spoke covers Quality only; full QPE scoring waits until showflat dimensions and confirmed pricing land.
Hudson Place Residences Unit Mix
Hudson Place Residences splits across two blocks: Block 18 is the shorter tower (stacks 01-08), Block 20 is the taller tower (stacks 09-18) and carries private lift access on selected high stacks. The split matters because the unit mix is not evenly distributed — certain layouts only exist in certain stacks.
| Layout | Type | Sqft / Sqm | Units | % of Total | Stacks |
|---|---|---|---|---|---|
| 2BR Premium | B1a | 646 / 60 | 35 | 10.7% | 08, 09 |
| 2BR Premium | B1b | 646 / 60 | 35 | 10.7% | 04, 15 |
| 2BR Premium | B1c | 646 / 60 | 14 | 4.3% | 05 |
| 2BR Premium | B1d | 646 / 60 | 21 | 6.4% | 18 |
| 2BR Premium + Study | B2 | 689 / 64 | 13 | 4.0% | 01 |
| 2BR Premium + Study | B3 | 689 / 64 | 65 | 19.9% | 10, 13, 14 |
| 3BR Deluxe | C1 | 893 / 83 | 14 | 4.3% | 06 |
| 3BR Premium | C2 | 1,012 / 94 | 14 | 4.3% | 03 |
| 3BR Premium | C3 | 1,023 / 95 | 22 | 6.7% | 11 |
| 3BR Premium + Study | C4 | 1,055 / 98 | 21 | 6.4% | 12 |
| 4BR Premium | D1a/D1b | 1,152 / 107 | 26 | 8.0% | 02, 07 |
| 4BR Suite + Flexi | D2a/D2b | 1,432 / 133 | 42 | 12.84% | 16, 17 |
| Penthouse | PH 1-5 | 1,744-2,196 | 5 | 1.53% | top floors |
Source: Hudson Place Residences sales gallery, April 2026
Three things stand out before we even discuss any single layout.
First, no 1-bedrooms. That is not unusual for one-north — Bloomsbury skipped them too. But it does narrow the buyer pool. A 1-bedder under $1.2M would have pulled in single working professionals from Mediapolis and Biopolis. By starting at 646sqft 2-bedroom, Hudson Place is fishing for couples, dual-income households, and investors who can let the second bedroom as a serviced room or co-living arrangement.
Second, the 2BR Premium dominates at 105 units across four sub-types — B1a, B1b, B1c, B1d. All four are 646sqft on paper but sit on different stacks (04, 05, 08, 09, 15, 18), meaning different orientations, view exposures, and floor-by-floor pricing premiums. The 2BR + Study (B2/B3, 689sqft, 78 units) adds a study room or flexi-space option — likely a premium of $50K-$80K over the equivalent floor on a B1 layout once pricing drops.
Third, the 4-bedroom Suite + Flexi at 1,432sqft (D2a/D2b) is bigger than typical. Bloomsbury's largest layout was 1,098sqft for a 3-bedroom; their 4-bedrooms topped out around 1,200sqft. Hudson Place's 1,432sqft 4BR is roughly 19% larger than Bloomsbury's biggest. That extra space is doing something — likely a flexi-room (the "Flexi" in the name) plus a proper helper's room and dual-key potential. We will know more after the showflat walk.
Hudson Place Residences Floor Plan Tours
The sales gallery virtual tour covers three layouts that anchor each major budget band. These are the only layouts with a measurable walk-through before showflat opens — every other type relies on the brochure floor plan only.
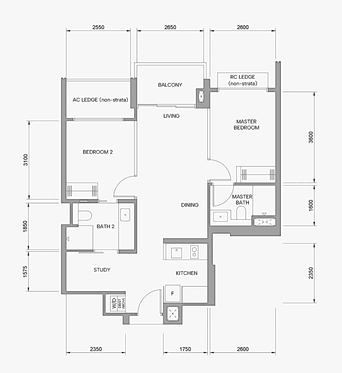
B3 — 2 Bedroom Premium + Study (689 sqft / 64 sqm)

Source: Hudson Place Residences official floor plan
The B3 layout is the workhorse of the development — 65 units in stacks 10, 13, and 14, which between them cover unblocked pool views (stack 10) and unblocked Wessex Estate views (stacks 13 and 14). At 689sqft, it is 6.7% larger than the standard 2BR Premium (646sqft) and gains a proper enclosed study room rather than a flexi corner.
Room sizes: Master bedroom 10.4 sqm (queen plus wardrobe plus small desk, walking space comfortable), Bedroom 2 9.2 sqm (queen plus wardrobe — a real bedroom, not a study masquerading), Living and Dining 21.1 sqm combined, Study 5.4 sqm (proper enclosed room, not a flexi nook), Kitchen 5.3 sqm (stand-alone, semi-enclosed), Master Bath 4.3 sqm, Bath 2 4.5 sqm, Balcony 4.0 sqm.
Layout verdict: Dumbbell — bedrooms on opposite sides of the unit, separated by the living and dining. That is the privacy-best, exit-best configuration for a 2-bedroom and the layout ELTA, Lentor Modern, and Bloomsbury all use for their tested-popular 2BRs. Stand-alone kitchen with hackable wall (the wall between kitchen and living can be removed) gives buyers an open-plan option without committing to it at handover. Two ensuite bathrooms is unusual for a 689sqft 2BR — most 2-bedroom layouts at this sqft band share one common bath. The trade-off is the kitchen and study eat slightly into corridor space.
Watch-out: The 9.2 sqm common bedroom is at the lower end of livable. A queen bed and a wardrobe fits, but adding a desk or chair starts to feel tight. If that bedroom needs to function as a study-plus-guest-room or a small child's bedroom long-term, the 5.4 sqm proper study is doing the heavy lifting on flexibility — verify at the showflat that the study door opens cleanly and the room takes a proper desk.
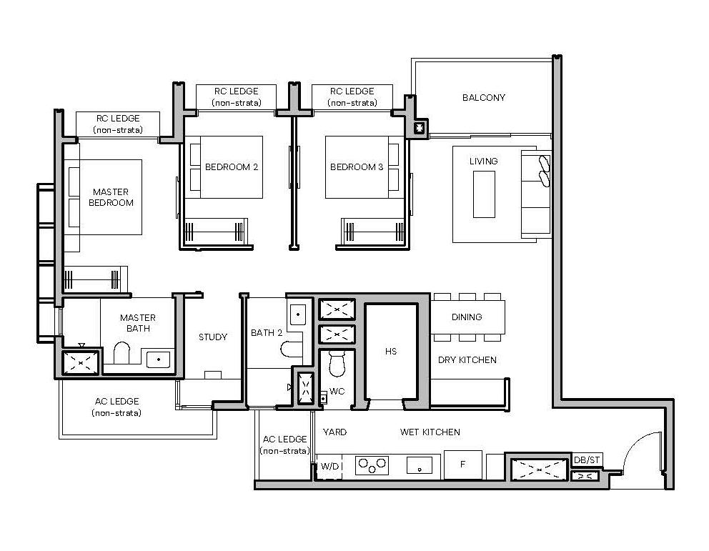
C4 — 3 Bedroom Premium + Study (1,055 sqft / 98 sqm)

Source: Hudson Place Residences official floor plan
The C4 is the largest 3-bedroom layout, 21 units exclusively on stack 12 (Wessex facing). The virtual tour walks the layout — the static plan above shows the full configuration.
Room sizes: Master bedroom 11.6 sqm (proper king bed plus walking space), Bedroom 2 8.9 sqm (queen plus wardrobe), Bedroom 3 8.8 sqm (queen plus wardrobe), Living and Dining 34.6 sqm combined (very wide frontage), Study 8.7 sqm (genuinely sized — fits a desk plus armchair, can convert to fourth bedroom for a young child), Wet Kitchen 6.2 sqm, Dry Kitchen 3.9 sqm, Master Bath 4.2 sqm, Bath 2 5.0 sqm, WC 1.5 sqm (separate yard WC — useful for helper or guest), Balcony 4.2 sqm.
Layout verdict: Three quality markers stack up here. First, wet plus dry kitchen with the wet kitchen enclosed and bath windows on the kitchen side — the proper Asian-cooking layout, no smells in the living area. Second, the 34.6 sqm wide living and dining with a hackable wall option means buyers can open the kitchen to the living for a more Western-loft feel without committing at handover. Third, the 8.7 sqm study is unusually generous for a 3BR — most 3BR + Study layouts at this sqft band give a 4-5 sqm flexi corner; Hudson's C4 is a real fourth room, just labelled study because the Singapore strata definition of bedrooms requires a window which the study does not have.
Watch-out: Common bedrooms at 8.8-8.9 sqm are at the lower end of livable for kids who want to grow into them. They take a queen plus wardrobe, but a study desk in the bedroom is tight. If this is a family 3BR for two children long-term, the C4's strength is the separate 8.7 sqm study — plan for one child to use the study as their study-and-play room while the bedroom stays for sleeping.
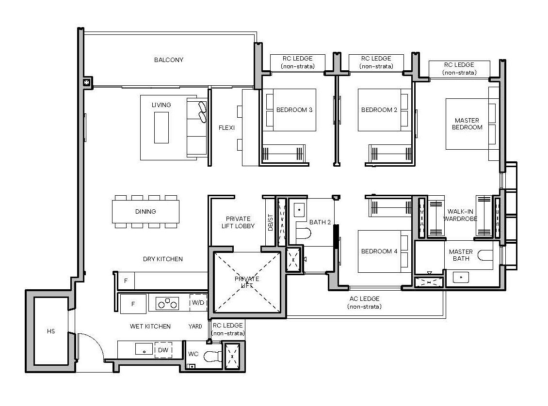
D2a — 4 Bedroom Suite + Flexi (1,432 sqft / 133 sqm)

Source: Hudson Place Residences official floor plan
The D2a is the headline layout — 42 units in stacks 16 and 17 (Wessex facing), the second-most populous unit type in the development behind only the B3. At 1,432sqft, it is the largest non-penthouse layout, and the virtual tour walks the configuration.
Room sizes: Master Bedroom 14.8 sqm (king plus walking space, walk-in wardrobe attached), Bedroom 2 8.9 sqm, Bedroom 3 8.8 sqm, Bedroom 4 9.0 sqm, Flexi 11.9 sqm (substantial — gym, study, fifth bedroom, or nursery), Living 13.1 sqm, Dining and Living combined 38.8 sqm, Master Bath 5.1 sqm, Bath 2 3.5 sqm, Walk-in Wardrobe 4.2 sqm, WC 1.4 sqm (yard), Wet Kitchen 4.9 sqm, Dry Kitchen 3.9 sqm, Yard 4.5 sqm.
Layout verdict: Five quality markers anchor this layout — and they are unusual for a 99-year leasehold launch in this price band. Private lift lobby opening directly into the unit (no shared corridor walking), private lift servicing only this stack. Master Bedroom 14.8 sqm with attached walk-in wardrobe plus en-suite Master Bath 5.1 sqm — proper landed-style master suite. 38.8 sqm wide living and dining with the kitchen as a service zone behind a divider rather than open-plan, giving the Western-loft feel without sacrificing Asian-cooking practicality. Wet plus dry kitchen with two fridges and a dishwasher (per the developer's USP list — which usually means cabinet provisions exist for these). Flexi room at 11.9 sqm large enough to function as a fifth bedroom, gym, or proper study without sacrificing the four bedrooms.
Bedroom dimensions deserve a note: Bedrooms 2, 3, and 4 sit at 8.8-9.0 sqm — same band as Hudson's C4 and slightly below the 9-10 sqm landed-style common room. For a 1,432 sqft 4-bedroom, that is the design choice — the extra sqft went into the master, the flexi room, the kitchens, and the wide living. Bedrooms are sized for queen plus wardrobe, not desk plus walking space.
Why this matters for the development: Bloomsbury's largest layout (4BR) was around 1,200sqft. Hudson's D2a is 19% larger. Most RCR new launches in the past 18 months capped 4-bedrooms at 1,200-1,300sqft for affordability reasons. 1,432sqft with private lift is upgrader-territory size. At 12.84% of total inventory (42 units), this is not a niche layout — it is the second-biggest stack count after the B3 2BR. If you walk the showflat for the D2a and it delivers on the wide living and the private lift, this becomes one of the most compelling 4-bedroom 99-year leasehold launches in the one-north corridor at this stage of the cycle.
Hudson Place Residences vs Bloomsbury Unit Mix
Compare Hudson Place's unit mix to Bloomsbury's, since both are Qingjian, side-by-side, same micro-market:
| Band | Hudson Place | Bloomsbury (Apr 2025 launch) |
|---|---|---|
| 1BR | 0% | 0% |
| 2BR (incl. + Study) | 56% (183 units) | ~52% |
| 3BR (incl. + Study) | 21.7% (71 units) | ~33% |
| 4BR | 20.8% (68 units) | ~14% |
| Penthouse | 1.5% (5 units) | ~1% |
Source: Hudson Place Residences and Bloomsbury Residences official information
Hudson Place skews further toward 2BRs (more rental units) and further toward 4BRs (more upgrader-territory units), at the expense of the 3-bedroom middle. That is the unit mix of a developer that learned from Bloomsbury — where 3BRs sold solidly but the bigger upside was at the 2BR rental end and the 4BR upgrader end.
If you are a 3BR-only buyer in this corridor, your choice at Hudson Place narrows to 71 units (split across 4 layout types) versus closer to 110 at Bloomsbury. That scarcity could push the 3BR pricing harder — something we will examine in our Hudson Place Residences pricing review.
Hudson Place Block 18 vs Block 20

Source: Hudson Place Residences sales gallery, April 2026
The two-block configuration is not cosmetic.
Block 18 is the shorter tower carrying stacks 01-08. It contains the 4BR Premium (D1a in stack 02), the larger 3BR Premium (C2 in stack 03), the smaller 2BR sub-types (B1b in 04, B1c in 05), the only 3BR Deluxe (C1 in stack 06), the 4BR Premium D1b in stack 07, and the only B2 stack with a single 2BR + Study layout (stack 01).
Block 20 is the taller tower carrying stacks 09-18, with private lift access on selected stacks. This is where the bulk of the 2BR units sit (B1a in 08-09, B3 in 10/13/14, B1b in 15, B1d in 18), the larger 3BR layouts (C3 in 11, C4 in 12), and the 4BR Suite + Flexi (D2a/D2b in 16-17).
For buyers, the practical implication: if you want private lift, you are looking at Block 20 — generally the higher-quantum stacks (3BR Premium + Study C4 stack 12, 4BR Suite + Flexi D2a stack 16). If you want a more conventional shared-lift block at potentially lower per-floor premium, Block 18 covers the 2BR and 3BR Deluxe range. Stack 01 (B2 single-stack 2BR + Study) is the lone exception in Block 18 and may carry its own pricing logic.
Hudson Place Residences Showflat Watch List
When you walk the gallery from 1 May, here is the dimensional checklist that will tell you whether the Hudson Place Residences floor plan delivers what its sqft suggests, and the questions to bring with you if you are asking yourself "should I buy Hudson Place Residences":
- Common bedroom in the 2BR Premium (646sqft): anything under 8 sqm means it is a study masquerading as a bedroom. 9 sqm+ is genuinely livable.
- Master bedroom in the 3BR Premium (1,012-1,055sqft): 12+ sqm means a proper king bed fits with walking space; 10-11 sqm means queen-only.
- Kitchen type across all units: look for enclosed kitchens with windows. Open or semi-enclosed kitchens send cooking smells into bedrooms.
- Helper's room in the 4BR Suite + Flexi (1,432sqft): under 5 sqm is unusable; over 5 sqm is a proper helper's room; over 6 sqm doubles as a usable store room.
- Bomb shelter location: corridor or entrance foyer is standard. Inside a bedroom eats into the bedroom's usable area.
- Balcony depth across all layouts: under 1.5m is efficient; over 2m means dead space you paid for.
- Ceiling height: 2.8m is the new launch standard. 2.9m+ on selected stacks is a quality marker — confirm whether private-lift Block 20 stacks get higher ceilings.
What Comes Next For Hudson Place Residences
This Hudson Place Residences review covers the layouts and the unit mix only. The companion spoke — Hudson Place Residences pricing and the gap to Bloomsbury Residences next door — has the indicative price list, price gap calculation, and breakeven yield numbers. Both connect back to our original Hudson Place Residences GLS analysis, which calculated the launch PSF floor from the $1,037 land cost.
A full QPE-scored Hudson Place Residences review with showflat dimensions, finishes assessment, and a final downside risk rating publishes after the public booking weekend on 16 May 2026 — that is the pillar article that pulls the GLS, floor plans, and pricing spokes together. Until then, the unit mix at this Hudson Place Residences Singapore launch tells a clear story: Qingjian is targeting investors who want rental scale, upgraders who want size, and downgraders who want a 4-bedroom they can stay in for a decade. The middle-market 3BR buyer is welcome, but they were not the primary brief.
Data sources: Hudson Place Residences sales gallery and floor plans (April 2026), Qingjian Realty unit type information, Bloomsbury Residences official materials, URA Realis transaction data, EdgeProp GLS tender records (March 2025)
Published by MJ Review Homes (reviewhomes.sg) | PropNex Realty Pte Ltd | Shaik Amar R058640H | Myra Jalil R058979B | +65 9690 5440 | +65 9738 3705
Hudson Place Residences at Media Circle
Two blocks, 327 units, showflat opens 1 May 2026
Tap or hover over any dot for details



