Tampines 3-Bedder: 11 Condos from $1.26M to $2M
We analyzed every floor plan, flagged the layouts that hurt your exit, and sorted them into three budget bands. You just pick yours.
Let Google know we are your trusted source. ❤️
Pin Review Homes SG to the top of your Google results.

Oh btw — if you have read this far and still cannot decide, we do 1-to-1 consults where we walk through your numbers, your options, and what actually makes sense for you. No obligations, no drama. Say hi
Key Details
Tampines 3-Bedder Map — 11 Condos Compared
All within District 18. Same area, wildly different prices and layouts.
Tap or hover over any dot for details
How We Review: The QPE Framework

Every review on this site runs through our QPE framework — Quality, Price, Exit.
Quality covers developer track record, land size, layouts, MRT access, views, and facilities. Price examines total price (not psf) and how it compares against what the market has tested — is there a price gap, or are you paying above proven territory? Exit asks who buys from you when it is time to sell, what the demand pool looks like, and what competing supply exists at resale.
All three need to check out. If one fails, you need to know which one — and why.
Why Compare Tampines 3-Bedroom Condos by Budget
Most buyers searching for a 3-bedder in Tampines start with a budget. Not a PSF target, not a district preference, not a developer shortlist. A number. "We have $1.6 million" or "Our ceiling is $1.8 million."
The problem is that $1.6 million buys wildly different products in Tampines depending on where you look. You could end up in a 915 sqft unit with bedrooms that barely fit a queen bed. Or you could end up in a 1,335 sqft unit with rooms your kids can actually grow up in. Same money. Completely different life.
This article puts 11 condos across 3 budget bands — with verified floor plans for every single one — so you can see exactly what your budget gets you at each price tier. No rankings. No "best condo in Tampines" nonsense. Just the numbers, the layouts, and what they mean for your daily life.
Price trend (12-24 months): Appreciating. Prices across all 11 condos have moved upward, driven by new launch benchmarks from Pinery Residences and Parktown Residence, plus anticipation of the Cross Island Line. Pinevale has appreciated the most aggressively — from $956 psf in May 2024 to $1,167 psf in October 2025.
Tampines 3-Bedroom Condo Prices: The Full Landscape
11 condos with 3-bedders in Tampines. The price range: $1.26 million all the way up to $2.01 million.
| Condo | TOP | Tenure | 3BR Size Range | 3BR Price Range | PSF Range |
|---|---|---|---|---|---|
| CityLife @ Tampines | 2015 | 99-yr (privatised EC) | 1,098 - 1,130 sqft | $1.78M - $2.01M | $1,620 - $1,770 |
| The Trilliant | 2015 | 99-yr (privatised EC) | 872 - 1,130 sqft | $1.72M - $1.98M | $1,522 - $1,773 |
| Treasure at Tampines | 2023 | 99-yr | 915 - 1,033 sqft | $1.50M - $1.98M | $1,639 - $1,916 |
| The Tapestry | 2021 | 99-yr | 926 - 990 sqft | $1.68M - $1.97M | $1,717 - $1,809 |
| Alps Residences | 2019 | 99-yr | 936 - 1,066 sqft | $1.31M - $1.73M | $1,399 - $1,623 |
| Q Bay Residences | 2017 | 99-yr | 1,033 - 1,163 sqft | $1.73M - $1.84M | $1,541 - $1,643 |
| Santorini | 2018 | 99-yr | 915 - 1,141 sqft | $1.26M - $1.80M | $1,377 - $1,593 |
| Arc at Tampines | 2014 | 99-yr | 958 - 1,152 sqft | $1.27M - $1.60M | $1,199 - $1,445 |
| Waterview | 2014 | 99-yr | 1,109 - 1,184 sqft | $1.61M - $1.87M | $1,251 - $1,655 |
| The Eden | 2003 | 99-yr (privatised EC) | 1,195 - 1,249 sqft | $1.64M - $1.78M | $1,200 - $1,400 |
| Pinevale | 1999 | 99-yr (privatised EC) | 1,281 - 1,389 sqft | $1.31M - $1.62M | $956 - $1,167 |
Sources: URA REALIS resale transactions, Q1 2024 to Q1 2026. Floor areas verified against developer floor plans. Room sizes confirmed from layouts — not estimated from sqft.
PSF is misleading if you look at it in isolation. Pinevale at $1,100 psf looks like a steal. Treasure at $1,836 psf looks expensive. But Treasure is a 3-year-old mega-development with a 50-metre pool and full condo facilities. Pinevale is a 27-year-old privatised EC with marble-free finishes. Different products, different buyer pools, different exit stories.
The only fair comparison is what your budget buys you in livable indoor space. That is what this article does — and why we checked every floor plan.

Not All Square Feet Are Equal: Reading a Tampines Floor Plan
Before comparing layouts, one principle that applies across every condo in this article: strata area includes balconies, AC ledges, planter boxes, and PES (private enclosed space). A unit listed at 1,130 sqft with 15 sqm of balcony and AC ledge has roughly 970 sqft of indoor living space. A unit listed at 1,033 sqft with a single small balcony might have 980 sqft indoors.
The sqft number on the URA transaction is not the number you live in. The floor plan is.
Three pitfalls we found while reviewing all 11 condos:
Balcony waste. Arc at Tampines allocates 11-13 sqm of balcony plus 4-5.5 sqm of AC ledge on most 3BR layouts. A "1,076 sqft" Arc unit has roughly 880 sqft of indoor space. The Trilliant's Type B1 (1,130 sqft) has a double balcony connected to the service yard — again, the indoor space does not match the number on paper. When comparing condos, check how much of the strata area is outdoors.
Patio traps. At The Trilliant, the Type A1a is listed as 1,130 sqft. In URA transactions, stack 12 shows "1,130 sqft" because the PES is included. But the internal layout is identical to the 872 sqft Type A1 — the same tiny bedrooms, the same cramped proportions. Similarly, 1,238 sqft Trilliant transactions are the 1,001 sqft B2 layout with patio. Always verify whether a "large" unit is a patio variant.
Curved walls. Arc at Tampines has curved master bedrooms across nearly every layout. Rectangular furniture — beds, wardrobes, desks — does not sit flush against a curved wall. Some buyers appreciate the architectural flair. At resale, it narrows the buyer pool.
Under $1.5M: Cheapest Tampines 3-Bedroom Condos
Five condos have entry points below $1.5M: Santorini, Arc at Tampines, Alps Residences, Pinevale, and The Eden (lower-floor units).
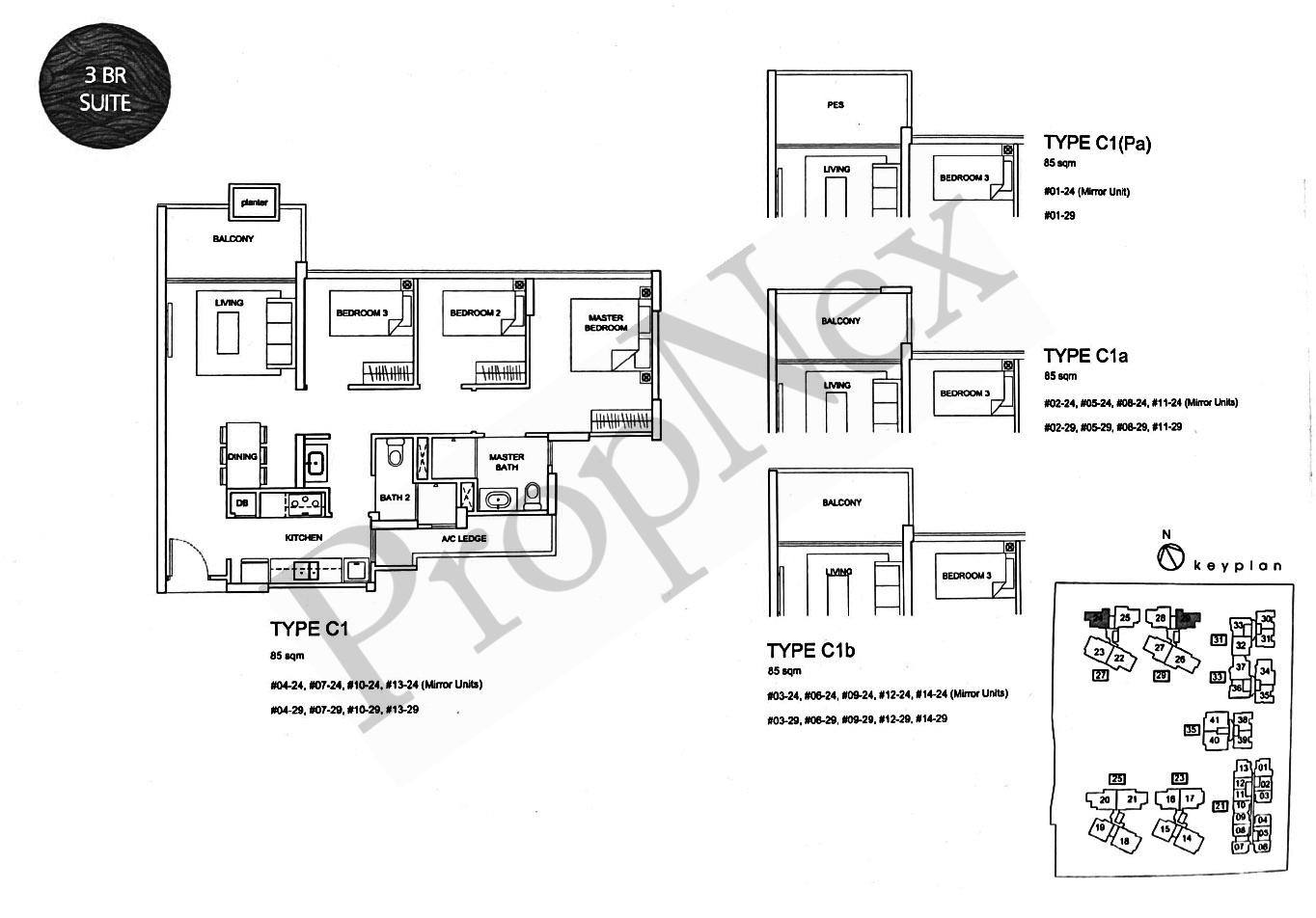
Santorini (915 sqft, TOP 2018)
The cheapest 3-bedder in Tampines. Recent transactions: $1.26M to $1.37M at $1,377 to $1,495 psf.


The Type C1 (85 sqm / 915 sqft) confirms what the price suggests — this is a starter unit. Common bedrooms measure around 8 sqm. A queen bed fits, but a wardrobe and desk in the same room requires creative furniture choices. The master is functional, not generous. Enclosed kitchen with utility area is a plus. Multiple sub-variants (C1a, C1b, C1Pa) share the same internal layout with different orientations.
For a couple with one young child, this works. For a family with school-age kids who need a desk in their bedroom, it will feel tight within two years.
Santorini 3BR URA Resale Transactions
| Date | Floor | Size | PSF | Price |
|---|---|---|---|---|
| Feb 2026 | 06-10 | 1,130 sqft | $1,593 | $1,800,000 |
| Jan 2026 | 06-10 | 1,108 sqft | $1,498 | $1,660,888 |
| Jan 2026 | 01-05 | 1,119 sqft | $1,545 | $1,730,000 |
| Dec 2025 | 11-15 | 1,119 sqft | $1,563 | $1,750,000 |
| Dec 2025 | 01-05 | 914 sqft | $1,419 | $1,298,000 |
| Oct 2025 | 06-10 | 914 sqft | $1,476 | $1,350,888 |
| Aug 2025 | 11-15 | 1,119 sqft | $1,519 | $1,700,000 |
| Aug 2025 | 06-10 | 914 sqft | $1,377 | $1,260,000 |
| May 2025 | 11-15 | 914 sqft | $1,495 | $1,368,000 |
Source: URA REALIS. 3-bedroom resale transactions only (914-1,130 sqft).
Arc at Tampines (958-1,152 sqft, TOP 2014)
Arc's 3BR entry point is $1.27M for the 958 sqft Type C — the smallest layout and ironically the cleanest one, without the curved master bedroom that plagues most other Arc layouts.



The Type C1 (990 sqft) introduces the curved master wall. Bedrooms are adequate in size but furniture placement is awkward in the master — a standard rectangular bed frame does not sit flush. The C2 (1,076 sqft) adds a 13 sqm balcony, which means despite being "1,076 sqft" the indoor space is closer to 880 sqft. Arc's layouts consistently trade indoor space for outdoor space.




The 3BR+Utility variants (C7 at 1,152 sqft, C8 at 1,130 sqft) stretch into Band 2 pricing at $1.44M-$1.60M, but with 12+ sqm of balcony and AC ledge, the effective indoor area is around 1,000 sqft.



Arc sits at the corner of Tampines Avenue 1 and Avenue 8 — part of the Avenue 8 oversupply cluster (more on this below). Transaction PSF ($1,199-$1,445) is among the lowest in the comparison for its age bracket.
Arc at Tampines 3BR URA Resale Transactions
| Date | Floor | Size | PSF | Price |
|---|---|---|---|---|
| Feb 2026 | 01-05 | 1,076 sqft | $1,324 | $1,425,000 |
| Jan 2026 | 11-15 | 1,151 sqft | $1,407 | $1,620,000 |
| Jan 2026 | 06-10 | 958 sqft | $1,446 | $1,385,000 |
| Dec 2025 | 06-10 | 958 sqft | $1,404 | $1,345,000 |
| Nov 2025 | 06-10 | 1,001 sqft | $1,309 | $1,310,000 |
| Nov 2025 | 11-15 | 958 sqft | $1,425 | $1,365,000 |
| Nov 2025 | 01-05 | 958 sqft | $1,399 | $1,340,000 |
| Oct 2025 | 06-10 | 1,065 sqft | $1,408 | $1,500,000 |
| Oct 2025 | 01-05 | 1,065 sqft | $1,309 | $1,395,000 |
| Oct 2025 | 16-20 | 958 sqft | $1,428 | $1,368,000 |
| Aug 2025 | 11-15 | 1,130 sqft | $1,416 | $1,600,000 |
| Jul 2025 | 01-05 | 958 sqft | $1,326 | $1,270,000 |
Source: URA REALIS. 3-bedroom resale transactions only (958-1,151 sqft). PSF range $1,270-$1,446 — consistently the lowest in the comparison for its age bracket.
Alps Residences (936-1,066 sqft, TOP 2019)
Alps enters this band with the 936 sqft Type C1 at $1.31M-$1.45M.


The bedrooms are small. Common rooms are in the 7.5-8 sqm range — a queen bed fits but side tables on both sides become a luxury. The 1,066 sqft Type C2 should be spacious enough, but the universal room and multiple balconies eat into usable indoor space. Bedroom 3 in the C2 cannot fit a side table at all. Bedroom 2 fits only one.

Alps sits on Tampines Street 86 near Santorini and Tapestry. At $1,399-$1,594 PSF, it trades at a slight discount to Santorini despite being 2 years newer, which tells you the market is pricing in the layout inefficiency.
Alps Residences 3BR URA Resale Transactions
| Date | Floor | Size | PSF | Price |
|---|---|---|---|---|
| Jan 2026 | 11-15 | 1,087 sqft | $1,594 | $1,733,000 |
| Jan 2026 | 01-05 | 936 sqft | $1,452 | $1,360,000 |
| Dec 2025 | 01-05 | 936 sqft | $1,506 | $1,410,000 |
| Dec 2025 | 06-10 | 936 sqft | $1,516 | $1,420,000 |
| Oct 2025 | 01-05 | 1,065 sqft | $1,398 | $1,490,000 |
Source: URA REALIS. 3-bedroom resale transactions only (936-1,087 sqft). The 1,087 sqft at $1,733,000 is the outlier — most 3BR trades cluster around $1.36M-$1.49M.
Pinevale (1,281-1,389 sqft, TOP 1999)
Pinevale enters this band at the lower end of its range. The 1,281 sqft Type A3 transacted at $1.31M-$1.44M in 2024, rising to $1.40M-$1.44M in 2025.



Every bedroom is a real bedroom. Common rooms measure 10-11 sqm — queen bed, wardrobe, desk, and walking space. The enclosed kitchen has a yard with natural ventilation. Utility room adds flexible storage. These are layout features that modern developments at this price simply cannot offer.
Pinevale is one of the lowest hanging fruits in Tampines — an older development with proven layouts trading well below the price floor set by new launches. Every time Parktown Residence sells a 3-bedder at $2.1M, Pinevale at $1.40M looks more attractive by comparison. The appreciation from $956 psf (May 2024) to $1,167 psf (October 2025) reflects buyers catching on.
The trade-off is age. TOP 1999 means approximately 72 years remaining on the lease. The facade shows its age. Factor in $80K-$120K for renovation.
Pinevale 3BR URA Resale Transactions
| Date | Floor | Size | PSF | Price |
|---|---|---|---|---|
| Oct 2025 | 06-10 | 1,388 sqft | $1,167 | $1,620,000 |
| Jun 2025 | 06-10 | 1,388 sqft | $1,116 | $1,550,000 |
| Jun 2025 | 06-10 | 1,280 sqft | $1,124 | $1,440,000 |
| May 2025 | 01-05 | 1,291 sqft | $1,084 | $1,400,000 |
| Apr 2025 | 01-05 | 1,291 sqft | $1,084 | $1,400,000 |
| Feb 2025 | 11-15 | 1,388 sqft | $1,094 | $1,518,888 |
| Feb 2025 | 11-15 | 1,280 sqft | $1,116 | $1,430,000 |
| Feb 2025 | 06-10 | 1,280 sqft | $1,093 | $1,400,000 |
| Oct 2024 | 06-10 | 1,280 sqft | $1,046 | $1,340,000 |
| Sep 2024 | 11-15 | 1,388 sqft | $990 | $1,375,000 |
| Sep 2024 | 01-05 | 1,291 sqft | $1,013 | $1,308,000 |
| May 2024 | 06-10 | 1,291 sqft | $1,022 | $1,320,000 |
| May 2024 | 01-05 | 1,388 sqft | $956 | $1,328,000 |
| May 2024 | 06-10 | 1,388 sqft | $979 | $1,360,000 |
| Dec 2023 | 01-05 | 1,291 sqft | $960 | $1,240,000 |
| Oct 2023 | 01-05 | 1,388 sqft | $951 | $1,320,000 |
| Sep 2023 | 11-15 | 1,280 sqft | $1,015 | $1,300,000 |
Source: URA REALIS. 3-bedroom resale transactions only (1,280-1,388 sqft). PSF appreciation from $951 (Oct 2023) to $1,167 (Oct 2025) — 23% in 2 years.

The Eden (1,195-1,249 sqft, TOP 2003)
The Eden's lower-floor units dip into this band. The 1,195 sqft Type D has transacted around $1.44M-$1.55M at lower floors, though the bulk of 3BR trades sit in the $1.64M-$1.78M range.



The Type E (1,249 sqft) is a standout. Common rooms measure 11-12 sqm — every bedroom fits a full furniture set (queen bed, side tables, wardrobe, desk). The kitchen is enclosed with yard. Wide living/dining fits a proper 6-seater table. Natural marble flooring in living and dining rooms — a quality marker you will not find in any new launch at this price. At $1,200-$1,400 PSF, The Eden trades 20-30% below comparable-sized units at Waterview and Santorini.
The Eden 3BR URA Resale Transactions
| Date | Floor | Size | PSF | Price |
|---|---|---|---|---|
| Apr 2025 | 01-05 | 1,119 sqft | $1,394 | $1,560,000 |
| Nov 2024 | 01-05 | 1,184 sqft | $1,402 | $1,660,000 |
| Mar 2023 | 01-05 | 1,108 sqft | $1,245 | $1,380,000 |
| Apr 2022 | 01-05 | 1,119 sqft | $1,177 | $1,318,000 |
Source: URA REALIS. 3-bedroom resale transactions only (1,108-1,184 sqft). Low transaction volume — The Eden trades infrequently, which limits price discovery but also means less supply competition at exit.
The Eden is the other lowest hanging fruit in this comparison. As a privatised EC on Tampines Street 34, it sits slightly away from the Avenue 8 corridor — which means less supply competition at exit. The facilities have a resort-style layout (lap pool, jacuzzi, tennis court, putting green) but at 23 years old, they feel dated compared to a Treasure or Tapestry. For buyers who prioritise room size and layout quality over swimming pool aesthetics, The Eden is hard to beat on value.
Band 1 benchmark: Pinevale 1,281 sqft at $1,440,000 (Jun 2025). For Santorini 915 sqft entering at $1.26M, price gap is approximately +14%. Downside risk: Low.
$1.5M to $1.75M: Tampines 3-Bedder Sweet Spot for HDB Upgraders
This is the battleground. Eight condos compete here — and this is where the newness-versus-space trade-off is sharpest.
| Condo | Layout | Size | Price Range | Common Room |
|---|---|---|---|---|
| Pinevale | A3/A4 | 1,335-1,389 sqft | $1.52M - $1.62M | ~11 sqm |
| The Eden | D/E | 1,195-1,249 sqft | $1.64M - $1.78M | ~10-12 sqm |
| Waterview | C2 | 1,119 sqft | $1.61M - $1.77M | ~10 sqm |
| Santorini | C3 | 1,141 sqft | $1.66M - $1.80M | ~9.5-10 sqm |
| Arc at Tampines | C7/C8 | 1,130-1,152 sqft | $1.44M - $1.60M | ~9 sqm (minus balcony) |
| Alps Residences | C2 | 1,066 sqft | $1.49M - $1.73M | ~8.5 sqm |
| Treasure at Tampines | C6 | 915 sqft | $1.50M - $1.68M | ~8 sqm |
| The Tapestry | C1/C2 | 926-990 sqft | $1.68M - $1.79M | ~8-9 sqm |
Treasure at Tampines (915 sqft, TOP 2023)
The newest product in this band. At $1.50M to $1.68M, you get a 3-year-old development with a 50-metre lap pool, tennis courts, and full condo facilities across 2,203 units.


The Type C6 (85 sqm / 915 sqft) is a dumbbell layout with bedrooms split across both sides. Common bedrooms measure approximately 8 sqm — a queen bed fits, but adding a wardrobe and desk requires creative furniture. Open-concept kitchen flows into dining and living. One common bath shared between two bedrooms.
For couples, young families with one child, or investors targeting rental yield, this is the cleanest product in the band — newness matters to tenants. Families with two school-age children will outgrow this layout.
Treasure at Tampines 3BR URA Resale Transactions
| Date | Floor | Size | PSF | Price |
|---|---|---|---|---|
| Mar 2026 | 06-10 | 1,033 sqft | $1,904 | $1,968,000 |
| Mar 2026 | 06-10 | 1,033 sqft | $1,781 | $1,840,800 |
| Mar 2026 | 06-10 | 914 sqft | $1,836 | $1,680,000 |
| Feb 2026 | 11-15 | 1,033 sqft | $1,916 | $1,980,000 |
| Feb 2026 | 01-05 | 914 sqft | $1,716 | $1,570,000 |
| Jan 2026 | 01-05 | 1,033 sqft | $1,788 | $1,848,000 |
Source: URA REALIS. 3-bedroom resale transactions only (914-1,033 sqft). The 914 sqft is Type C6, the 1,033 sqft is Type C9P (3BR Premium).
Treasure also has a larger Type C9P (1,033 sqft, 3-Bedroom Premium) that enters Band 3 at $1.84M-$1.98M — more on that below.
Waterview (1,109-1,184 sqft, TOP 2014)
Waterview sits along Tampines Avenue 1, overlooking the Bedok Reservoir quarry area. Q Bay is nearby on Tampines Street 86. The reservoir-facing units at Waterview get unblocked greenery and water views — a genuine differentiator that no other condo in this comparison offers.


The Type C2 (104 sqm / 1,119 sqft) is one of the best layouts in this entire comparison. All three bedrooms lined up on one side with the master at the end. Common rooms are generous — in the 10 sqm range. Each bedroom fits a queen bed, wardrobe, and desk. Enclosed kitchen with yard. The C1 variant at ~1,130 sqft is the same layout mirrored.
Waterview also has a Type D2 (1,109 sqft, 3BR+Study) for families who need a home office without sacrificing a bedroom, and a Type D1 (1,184 sqft, 3BR+Study) that competes in Band 3.

Waterview 3BR URA Resale Transactions
| Date | Floor | Size | PSF | Price |
|---|---|---|---|---|
| Feb 2026 | 01-05 | 1,184 sqft | $1,562 | $1,850,000 |
| Oct 2025 | 06-10 | 1,184 sqft | $1,495 | $1,770,000 |
| Sep 2025 | 01-05 | 1,108 sqft | $1,605 | $1,780,000 |
| Aug 2025 | 06-10 | 1,130 sqft | $1,655 | $1,870,000 |
Source: URA REALIS. 3-bedroom resale transactions only (1,108-1,184 sqft). Low volume but consistent price trajectory upward.
Waterview is a lowest hanging fruit. At $1.61M-$1.77M for the 1,119 sqft 3BR, it undercuts CityLife by $100K-$200K while offering comparable or better room sizes. The layouts are among the best in this comparison. The caveat is Avenue 8 oversupply — six condos cluster within walking distance, all competing for the same buyer pool at exit.
Santorini (1,141 sqft, TOP 2018)
At $1.66M to $1.80M for the larger layout, you get 226 extra sqft over Treasure for roughly the same money.

The Type C3 (106 sqm / 1,141 sqft) has bedrooms 1 and 2 on one side, master on the other, with a larger balcony and planter. Common rooms step up to approximately 9.5-10 sqm — enough for a queen bed plus a desk. Enclosed kitchen with utility. Variants C3(P), C3(Pa), and C3a are the same internal layout at 104 sqm with minor differences for ground-floor PES units.
Santorini is 8 years old — old enough that the initial shine has worn off, young enough that major maintenance is not yet a concern. For families who need functional room sizes without paying the privatised EC premium, the 1,141 sqft Santorini layout is one of the strongest value propositions in Tampines.
The Tapestry (926-990 sqft, TOP 2021)
A smaller, lower-density alternative to Treasure. At 861 units versus Treasure's 2,203, this is a quieter development.


The Type C2 (92 sqm / 990 sqft) is the layout worth considering. The extra 64 sqft over the C1 (926 sqft) pushes common rooms from ~8 sqm to ~9 sqm — enough for a queen bed and a small desk. At $1.70M-$1.79M, the C2 bridges the gap between compact and standard without jumping to the $1.8M+ band.

The 926 sqft Type C1 at ~$1.68M sits in an awkward spot — marginally more expensive per sqft than Treasure while being 2 years older, with 11 fewer sqft and smaller facilities. It works if you value lower density, but on pure numbers, Treasure offers more for less at this size.
The Tapestry 3BR URA Resale Transactions
| Date | Floor | Size | PSF | Price |
|---|---|---|---|---|
| Feb 2026 | 06-10 | 990 sqft | $1,809 | $1,791,888 |
| Jan 2026 | 11-15 | 990 sqft | $1,767 | $1,750,000 |
| Oct 2025 | 06-10 | 925 sqft | $1,809 | $1,675,000 |
| Oct 2025 | 06-10 | 990 sqft | $1,717 | $1,700,000 |
| Oct 2025 | 11-15 | 990 sqft | $1,767 | $1,750,000 |
Source: URA REALIS. 3-bedroom resale transactions only (925-990 sqft). PSF consistently above $1,700 — the highest per-sqft cost in the mid-band.

Band 2 benchmark: Waterview 1,184 sqft at $1,870,000 (Aug 2025) and Santorini 1,141 sqft at $1,750,000 (Dec 2025). For Treasure 915 sqft entering at $1.50M, price gap against the band ceiling is approximately +25%. For Pinevale 1,389 sqft entering at $1.52M, price gap is approximately +23%. Downside risk: Low. The band is well-tested with consistent transaction volume.
$1.75M to $2.0M: Premium Tampines 3-Bedroom Condos
This is where you pay for location, size, or both. Seven options compete here.
| Condo | Layout | Size | Price Range | What You Get |
|---|---|---|---|---|
| CityLife @ Tampines | C7a/C1b/C4b | 1,098-1,130 sqft | $1.78M - $2.01M | Walk to Tampines MRT interchange + mall |
| The Trilliant | B2/B4 | 1,001-1,012 sqft | $1.72M - $1.98M | Tampines Central, 7 min to MRT |
| Q Bay Residences | Cc1 | 1,033 sqft | $1.73M - $1.84M | Bus to Tampines West MRT (DTL) |
| Waterview | D1 | 1,184 sqft | $1.77M - $1.87M | 3BR+Study, reservoir views |
| Treasure at Tampines | C9P | 1,033 sqft | $1.84M - $1.98M | Newest build, 3BR Premium |
| Santorini | C3 | 1,141 sqft | $1.73M - $1.80M | Best sqft-per-dollar at this tier |
| Tapestry | 1,130 sqft | 1,130 sqft | ~$1.97M | Premium + Flex layout |
CityLife @ Tampines (1,098-1,130 sqft, TOP 2016)
CityLife is the proven ceiling of Tampines 3-bedders. The 1,130 sqft Type C4b last transacted at $2.01 million in February 2026. This privatised EC sits within a 9-minute walk of the Tampines MRT interchange — one of the most convenient residential locations in the estate.


The layouts deserve more credit than just "well located." The C4b (105 sqm / 1,130 sqft) has all three bedrooms along one side with a trellis and dual balcony arrangement — cross-ventilation that modern sealed-corridor condos cannot replicate. Common rooms comfortably hit 10 sqm. Even the smallest CityLife 3BR, the C7a at 1,098 sqft, has common rooms in the 9.5-10 sqm range with efficient proportions. No wasted corridor space.

The C1b (1,109 sqft) adds dual balconies off both the living area and master bedroom — an architectural feature unique to CityLife in this comparison.

CityLife @ Tampines 3BR URA Resale Transactions
| Date | Floor | Size | PSF | Price |
|---|---|---|---|---|
| Mar 2026 | 11-15 | 1,097 sqft | $1,735 | $1,905,000 |
| Feb 2026 | 06-10 | 1,108 sqft | $1,714 | $1,900,000 |
| Dec 2025 | 11-15 | 1,130 sqft | $1,770 | $2,000,000 |
| Nov 2025 | 11-15 | 1,108 sqft | $1,732 | $1,920,000 |
| Sep 2025 | 06-10 | 1,097 sqft | $1,621 | $1,780,000 |
Source: URA REALIS. 3-bedroom resale transactions only (1,097-1,130 sqft). Every transaction above $1.78M — the proven price floor for Tampines Central.
The premium is justified by more than just MRT proximity. The layouts are genuinely good, the room proportions are efficient, and the location premium compounds as the area matures.
The Trilliant (872-1,130 sqft, TOP 2015)
The Trilliant requires careful navigation. It has five 3BR layouts, and they are not created equal.


The picks: Type B2 (1,001 sqft) and Type B4 (1,012 sqft). Single balcony, no wasted outdoor space.
Common rooms approximately 9 sqm. Enclosed kitchen with yard. Clean layouts with good bedroom-to-living proportions. At $1.72M-$1.79M, these are the most affordable Tampines Central 3-bedders.
The ones to avoid:

Type A1 (872 sqft) — common rooms are around 7.5 sqm. A queen bed fits, nothing else. This is functionally a 2-bedroom with a box room.
Type A1a (1,130 sqft, Patio) — the transaction trap. Shows as 1,130 sqft in URA data (stack 12) because the PES is included in strata area. The internal layout is identical to the 872 sqft A1. Similarly, 1,238 sqft transactions are the B2 layout with patio. Always check whether a "large" Trilliant unit is a patio variant.

Type B1 (1,130 sqft) — the rooms are genuinely bigger than the A1, but a double balcony connected to the service yard consumes a significant chunk of the strata area. You are paying PSF on outdoor space most families will not use.

The Trilliant 3BR URA Resale Transactions
| Date | Floor | Size | PSF | Price | Notes |
|---|---|---|---|---|---|
| Feb 2026 | 06-10 | 1,011 sqft | $1,769 | $1,790,000 | B2/B4 |
| Jan 2026 | 06-10 | 1,011 sqft | $1,745 | $1,766,000 | B2/B4 |
| Jan 2026 | 01-05 | 1,001 sqft | $1,718 | $1,720,000 | B2/B4 |
| Jan 2026 | 06-10 | 1,130 sqft | $1,741 | $1,968,000 | B1 or patio |
| Jan 2026 | 01-05 | 1,130 sqft | $1,688 | $1,908,000 | Likely patio |
| Jan 2026 | 11-15 | 871 sqft | $1,835 | $1,600,000 | A1 — avoid |
| Dec 2025 | 01-05 | 1,130 sqft | $1,522 | $1,720,000 | Likely patio |
| Nov 2025 | 11-15 | 1,001 sqft | $1,757 | $1,758,888 | B2/B4 |
| Nov 2025 | 06-10 | 1,001 sqft | $1,773 | $1,775,000 | B2/B4 |
| Nov 2025 | 06-10 | 871 sqft | $1,835 | $1,600,000 | A1 — avoid |
| Nov 2025 | 11-15 | 1,001 sqft | $1,767 | $1,768,888 | B2/B4 |
| Oct 2025 | 11-15 | 1,130 sqft | $1,741 | $1,968,000 | B1 |
| Oct 2025 | 11-15 | 1,130 sqft | $1,752 | $1,980,000 | B1 |
Source: URA REALIS. 3-bedroom resale transactions only (871-1,130 sqft). Watch for patio traps — 1,130 sqft at floors 01-05 may be A1a patio (872 sqft internal). The B2/B4 at 1,001-1,011 sqft are the picks.
Q Bay Residences (1,033-1,163 sqft, TOP 2017)
Q Bay sits on Tampines Street 86, approximately 1.4 km from Tampines West MRT on the Downtown Line — a 16-minute walk or short bus ride. Not walking distance, but still the closest Avenue 8 condo to a DTL station.


Type Cc1 (96 sqm / 1,033 sqft) is the optimal Q Bay layout. Clean proportions, no wasted balcony space. Common rooms approximately 9 sqm. At 1,033 sqft, same size as Treasure's premium C9P but in a 2017 development.
The Type VH-C (1,119 sqft, Verandah Homes) has the kitchen connected to a balcony opening into the living room — polarising. Not many buyers like the kitchen-to-living-balcony flow.

The Type TR-C (1,163 sqft) is a dual key unit.

Works for cashflow-sensitive buyers who can rent out one side. At resale, dual key units consistently struggle because the buyer pool is smaller — most families want a unified 3-bedroom, not a split configuration. The 1,216 sqft is a penthouse, not a standard 3BR.
Q Bay Residences 3BR URA Resale Transactions
| Date | Floor | Size | PSF | Price | Layout |
|---|---|---|---|---|---|
| Jan 2026 | 11-15 | 1,119 sqft | $1,643 | $1,838,888 | VH-C (Verandah) |
| Jan 2026 | 06-10 | 1,162 sqft | $1,523 | $1,770,000 | TR-C (Dual Key) |
| Oct 2025 | 06-10 | 1,119 sqft | $1,563 | $1,750,000 | VH-C (Verandah) |
| Oct 2025 | 01-05 | 1,162 sqft | $1,437 | $1,670,888 | TR-C (Dual Key) |
| Aug 2025 | 06-10 | 1,119 sqft | $1,541 | $1,725,000 | VH-C (Verandah) |
| Jul 2025 | 06-10 | 1,033 sqft | $1,539 | $1,590,000 | Cc1 (Standard) |
Source: URA REALIS. 3-bedroom resale transactions only (1,033-1,162 sqft). The Cc1 at 1,033 sqft is the cleanest layout — only one transaction in the dataset at $1.59M.
Waterview Type D1 (1,184 sqft, 3BR+Study)
This is the layout the previous version of this article missed. The Type D1 (110 sqm / 1,184 sqft) is a 3-bedroom plus study that competes directly in Band 3.

Three real bedrooms with common rooms likely hitting 10-11 sqm, PLUS a properly sized study between the kitchen and bedrooms. For families who need a home office or a homework station without sacrificing a bedroom, this layout solves a real problem. At $1.77M-$1.87M, it undercuts CityLife by $100K-$200K while delivering more space and a study. The reservoir-facing units add unblocked views that nothing else in Band 3 offers.
Treasure Type C9P (1,033 sqft, 3-Bedroom Premium)
The layout most Treasure buyers do not know exists. The extra 118 sqft over the C6 goes primarily into bedroom sizes — common rooms step up from 8 sqm to approximately 9-9.5 sqm. Enclosed kitchen area. An additional WC makes morning routines with kids noticeably easier.

At $1.84M-$1.98M, this layout competes in Band 3 — but delivers the newest build in the entire district at that price tier.
Band 3 benchmark: CityLife 1,130 sqft at $2,010,000 (Feb 2026). For Q Bay entering at $1.73M, price gap is approximately +16%. For Trilliant B2 entering at $1.72M, price gap is approximately +17%. For Waterview D1 entering at $1.77M, price gap is approximately +14%. Downside risk: Little to None. CityLife has proven the $2.0M ceiling multiple times, and every entry point sits well below it.
The $1.65M Price Test: What Each Tampines Condo Gets You
At a budget of $1.65 million, what does each condo give you?
| Condo | Layout | Size (sqft) | Age | Common Room | Queen + Desk in Every Room? |
|---|---|---|---|---|---|
| Treasure | C6 | 915 | 3 years | ~8 sqm | Master only |
| Tapestry | C1 | 926 | 5 years | ~8.5 sqm | Master only |
| Alps | C2 | 1,066 | 7 years | ~8.5 sqm | Master only (BR3 no side table) |
| Santorini | C3 | 1,141 | 9 years | ~9.5 sqm | Master + 1 common |
| Waterview | C2 | 1,119 | 12 years | ~10 sqm | Master + 1 common |
| Arc | C8 | 1,130 | 12 years | ~9 sqm (curved master) | Master + 1 (minus curve) |
| Eden | E | 1,249 | 23 years | ~11-12 sqm | All 3 bedrooms |
| Pinevale | A4 | 1,335 | 27 years | ~11 sqm | All 3 bedrooms |
Same budget. Eight very different products. The newest gives you the least indoor space. The oldest gives you the most. Everything in between is a trade-off between age and livability.
A couple without kids might genuinely prefer the newer 915 sqft unit with modern finishes and a pool. A family with two teenagers might need the 1,335 sqft layout where everyone has room to breathe. The question is not which condo is "best" — it is which condo matches your life.
The Lowest Hanging Fruit: Older Condos With the Most Upside
Three condos in this comparison stand out as lowest hanging fruits — older developments with proven layouts that trade at a significant discount to the price floor set by new launches. Every time a new launch sells at $2,000+ psf, these condos become more attractive by comparison because the gap between resale and new launch widens. Buyers who cannot stretch to $1.9M+ for a new launch look at resale — and these condos catch them.
The Eden at $1,200-$1,400 PSF trades 20-30% below comparable-sized units at Waterview and Santorini. The layouts deliver 10-12 sqm common rooms, marble flooring, and enclosed kitchens. At $1.64M-$1.78M for 1,195-1,249 sqft, this is the most indoor space per dollar in Bands 2 and 3.
Pinevale at $956-$1,167 PSF is the lowest PSF in all of Tampines. At 1,281-1,389 sqft, every bedroom is a real bedroom. It has already appreciated 20% in two years — and still sits well below the district average.
Waterview at $1,251-$1,655 PSF offers some of the best layouts in the comparison (Type C2, Type D1) with reservoir views. The Type D1 (1,184 sqft 3BR+Study) at $1.77M-$1.87M undercuts CityLife while delivering more space.
We will explore the lowest hanging fruit concept in depth in our upcoming guide to lowest hanging fruit condos in Singapore.
The Avenue 8 Oversupply Factor
Six of the 11 condos in this comparison cluster along the Tampines Avenue 8 corridor: Waterview, Santorini, Q Bay Residences, The Tapestry, Arc at Tampines, and Alps Residences. All sit within a 5-minute walk of each other.
This matters at exit. When you sell, you are not competing against other units in your condo alone — you are competing against every 3-bedder on Avenue 8 at a similar price point. A buyer with $1.7 million will compare your Waterview 1,119 sqft against a Santorini 1,141 sqft, an Arc 1,130 sqft, and an Alps 1,066 sqft before deciding. When multiple sellers list simultaneously across these six developments, pricing power is limited. Sellers who overprice sit on the market while buyers walk next door.
The flip side: high transaction volume means liquidity is never the issue. Finding a buyer is easy.
What wins in an oversupply corridor is your entry price and your layout. The best layouts move regardless of market conditions — a well-priced Waterview 1,119 sqft with 10 sqm common rooms will always find a buyer before a poorly laid-out 1,066 sqft Alps unit at the same price. Waterview wins on layout quality and views. Santorini wins on the mid-tier sweet spot. The Tapestry wins on being the newest. Arc and Alps are harder to differentiate, which is why they tend to trade at the lower end of the PSF range.
Condos outside this corridor — CityLife, Trilliant, The Eden, Pinevale, and Treasure — face less direct supply competition at exit.
How the Cross Island Line Affects Tampines 3-Bedroom Condo Prices

The Cross Island Line is the single biggest infrastructure shift coming to Tampines. When operational, it will add MRT stations at Tampines North, connecting previously underserved areas to the rest of the island.
First, it compresses travel times. Condos that currently rely on bus feeders to Tampines MRT — like Santorini, Q Bay Residences, and Waterview — will have closer MRT access via Tampines North station (CRL). The station is still approximately 1.2-1.5 km from these condos, so it is not walking distance for most, but it reduces the MRT gap compared to today.
Second, it drives new launch pricing. Parktown Residence is already pricing 3-bedders above $2.1 million — anchored on the CRL story. Every new launch that enters Tampines North benchmarks against Parktown. And every time a new launch sets a higher price floor, existing resale condos become more attractive by comparison. A $1.65 million 3-bedder at Santorini looks better every time a new launch next door asks for $2.1 million.
The risk is timing. CRL construction is underway but operational dates have shifted before. If you are buying today with the assumption that CRL access will boost your resale value, build in a price gap.
Renovation Costs for Tampines Resale Condos
If you are buying resale, factor in renovation:
- Under 5 years (Treasure, Tapestry): Minimal. $20K-$40K for cosmetic changes.
- 5-7 years (Alps): Light refresh possible. $30K-$60K.
- 8-12 years (Santorini, Q Bay, Waterview, Arc): Light to moderate. $40K-$80K for kitchen, bathrooms, and flooring.
- 20+ years (Pinevale, The Eden): Full renovation likely. $80K-$120K. Pipes, wiring, flooring, kitchen, bathrooms. Not optional at this age.
Add renovation to your total cost. A $1.55M Pinevale plus $100K renovation is really $1.65M all-in — the same as a Treasure 915 sqft that you walk into without touching anything. A $1.64M Eden plus $100K renovation is $1.74M — still below CityLife and Trilliant.
How to Shortlist a 3-Bedroom Condo in Tampines
Step 1: Fix your ceiling. Not your "comfortable" budget — your hard ceiling, including BSD, legal fees, and renovation. If your ceiling is $1.7 million all-in, your purchase price needs to be closer to $1.55M-$1.60M after BSD and renovation.
Step 2: Decide what you cannot compromise on. The real compromises are: room size (can the kids share until they are 12?), age (can you live with 2003 finishes?), facilities (do you actually use a pool?), and MRT proximity (do you drive or commute?).
Step 3: Check the floor plan before visiting. This article shows every 3BR layout in Tampines. Eliminate condos with room sizes that do not work for you before you waste a weekend viewing them. A 915 sqft unit with 8 sqm common rooms is not going to magically feel bigger in person.
Step 4: Visit at least 3 condos from different budget bands. Walk through a 1,119 sqft unit at Waterview and stand in the common bedroom. Then walk through a 915 sqft unit at Treasure and stand in the same spot. Your body will tell you which one works.
Step 5: Check the view and noise. Tampines has several condos backing onto the PIE or facing HDB blocks. Always visit in the morning and once in the evening.
Step 6: Know your SSD timeline. The Seller's Stamp Duty period is 4 years. If you sell within 4 years of purchase, you pay SSD at graduated rates (12% in year 1, down to 4% in year 4). If you might need to relocate within 3 years, renting could be smarter than buying.
Risks of Buying a Resale Condo in Tampines
1. Resale means you inherit someone else's choices. You do not get to pick your floor, your facing, or your finishes. Visit every unit in person before committing.
2. Older condos have older maintenance. Developments from 2014-2017 are entering the 8-12 year range where lifts, facades, and common areas start showing wear. Pinevale and The Eden at 23-27 years will need major cyclical maintenance in the coming decade. Factor in potential MCST special levies — $5,000-$15,000 per unit for major works.
3. Lease decay matters for Pinevale and The Eden. With approximately 72-74 years remaining, both are above the 60-year CPF usage threshold. But if you hold for 15+ years, the remaining lease drops below 60, which restricts CPF usage for your exit buyer. This does not matter for a 5-10 year hold.
4. Compact 3-bedders are not real 3-bedders for families. A 915 sqft unit with 8 sqm common rooms is functionally a 2-bedroom with a store room. At resale, your future buyer will walk into the common bedroom and make the same assessment. Room sizes that do not work for you will not work for your exit buyer either — and that affects your resale price.
5. Avenue 8 oversupply limits pricing power. Six condos within walking distance means your exit buyer has five other options to compare against. Differentiation matters — if your unit is not the newest, the biggest, or the best located on the corridor, price it competitively or wait.
6. Curved walls and patio traps narrow your exit buyer pool. Arc's curved master bedrooms and Trilliant's patio units will appeal to a smaller subset of buyers at resale. The more standard the layout, the wider the buyer pool.
Tampines Condo Resale Exit Strategy: Who Buys From You?
Tampines is one of the most densely populated HDB towns in Singapore. The upgrader pool is massive and it replenishes every MOP cycle. When you sell your condo in Tampines, the primary buyer is the Tampines HDB owner who has just cleared MOP, sold their flat for $500,000-$800,000, and wants to upgrade without leaving the area.
That buyer walks in with a budget — not a PSF target. "I have $1.7 million, what can I get?"
| Buyer Profile | Budget Range | What They Buy | Timeline |
|---|---|---|---|
| HDB upgraders (3-4 room) | $1.3M - $1.7M | Santorini, Waterview, Pinevale, Eden, Arc, Alps | Continuous (MOP cycles) |
| HDB upgraders (5-room/exec) | $1.7M - $2.2M | CityLife, Trilliant, Q Bay, Treasure 1,033sqft, Waterview D1 | Continuous (MOP cycles) |
| Condo right-sizers | $1.5M - $2.0M | Downsizing from larger units elsewhere | Ongoing |
| Investors (rental play) | $1.3M - $1.7M | Treasure, Tapestry, Alps (newer = higher rent) | Ongoing |
The condos that exit easiest are the ones that fit the most budgets. In Tampines, that means the $1.5M-$1.7M range — where the bulk of HDB upgraders land. Santorini, Waterview, The Eden, and Pinevale all sit squarely in this zone with more space per dollar than the newer alternatives.
Treasure has a different exit advantage: sheer volume. With 2,203 units, it will always have transaction activity. The downside is price competition — when 10 units are listed simultaneously, sellers undercut each other.
The worst position at exit is being average on all three metrics. If a condo is not the newest, not the biggest, and not the best located, it will sit on the market longest. Alps Residences and Arc at Tampines sit in this territory — neither the cheapest entry, nor the best layouts, nor the strongest location. They trade on price alone, which means your exit pricing power is limited.
New launch context: Pinery Residences starts 3-bedders from $1.93M on the Downtown Line, and Parktown Residence launched standard 3-bedders from $2.10M (now sold out; remaining 3BR Premium from $2.578M) on the Cross Island Line. Their launch prices set the ceiling that makes these resale options look increasingly attractive.
For context on the broader District 18 picture, Pasir Ris 8 — the only integrated development in Pasir Ris — is now trading 3-bedders at $1.97M and above.
Best Tampines 3-Bedroom Condo by Buyer Profile
Couple planning ahead should look at Santorini's compact 915 sqft from $1.26M or Arc's 958 sqft from $1.27M in Band 1. Cheapest entry into the market. The second common room doubles as a study until you need to upsize.
Young family with one child should target Waterview's 1,119 sqft from $1.61M or Santorini's 1,141 sqft from $1.66M in Band 2. Common rooms at 9.5-10 sqm fit a queen bed and a study desk — enough for a child through primary school.
Established family with 2-3 kids should look at The Eden's 1,249 sqft from $1.64M or Pinevale's 1,335 sqft from $1.52M in Bands 1-2. These are the only options under $1.7M where every bedroom is a real bedroom — 10-12 sqm common rooms fit a queen bed, wardrobe, and desk with walking space. Factor in $80K-$120K renovation for both.
Established family with a higher budget should consider CityLife @ Tampines from $1.78M or Waterview's D1 (1,184 sqft 3BR+Study) from $1.77M. CityLife wins on location (MRT interchange, walk to mall). Waterview D1 wins on space (three real bedrooms PLUS a study) and views. Both are strong exit plays.
Investors targeting rental yield should focus on Treasure at Tampines 915 sqft from $1.50M. Newest build, largest facilities, strongest tenant appeal. The Tapestry at 926 sqft from $1.68M is the lower-density alternative.
CBD commuters should look at Q Bay Residences' Type Cc1 (1,033 sqft) from $1.73M. Nearest DTL station is Tampines West (1.4 km, bus ride) — not walking distance, but still the most direct DTL access among Avenue 8 condos. The 1,033 sqft layout is the optimal pick. Avoid the 1,119 sqft Verandah layout (kitchen-balcony issue) and the 1,163 sqft dual key (resale risk).
Value hunters with renovation budget should focus on The Eden and Pinevale. Both are lowest hanging fruits with the most upside potential in the district. The Eden's marble flooring and resort-style grounds at $1,200-$1,400 PSF is hard to beat. Pinevale's 1,389 sqft at $1,167 PSF is more space per dollar than anywhere else in Tampines.
Not the strongest picks: Alps Residences (small rooms for the sqft, oversupply corridor), Arc at Tampines (curved master bedrooms, heavy balcony waste), and The Trilliant Type A1 (872 sqft with 7.5 sqm common rooms). All three trade at lower PSFs for a reason — the layouts underdeliver relative to the competition.
Tampines 3-Bedders: Our Assessment
Band 1 (Under $1.5M) — Downside risk: Low. Santorini 915 sqft at $1.26M-$1.37M is the cheapest entry. Pinevale 1,281 sqft at $1.31M-$1.44M is the most space per dollar. Arc at 958 sqft from $1.27M is another entry option but watch the curved master. Alps at 936 sqft from $1.31M has tight rooms for the money. Both Pinevale and The Eden's lower-floor units are lowest hanging fruits with the most room to run.
Band 2 ($1.5M-$1.75M) — Downside risk: Low. This is where most Tampines buyers land, and the trade-off is sharpest. At $1.65M, you choose between 915 sqft new (Treasure) and 1,335 sqft old (Pinevale) — a 46% space difference for the same price. Waterview's 1,119 sqft and Santorini's 1,141 sqft offer the middle ground with proper room sizes. The Eden's 1,249 sqft at $1.64M-$1.78M is the discovery — more indoor space per dollar than anything except Pinevale, with marble flooring and resort facilities. Price gap against the ceiling is +12% to +25% depending on entry point.
Band 3 ($1.75M-$2.0M) — Downside risk: Little to None. CityLife has proven the $2.01M ceiling. Every other option sits at least $100K below. The reranked picks: Waterview D1 (1,184 sqft 3BR+Study) is the best value — three bedrooms plus a study, reservoir views, $100K-$200K below CityLife. CityLife C4b (1,130 sqft) is the unbeatable location. Trilliant B2/B4 (1,001-1,012 sqft) are the affordable Tampines Central plays — but verify the layout is not a patio variant. Q Bay Cc1 (1,033 sqft) is the commuter's pick on the Downtown Line. Treasure C9P (1,033 sqft) is the newest build at this tier.
Above $2.0M, you are in new launch territory. Compare against Pinery Residences at $1.93M or Parktown Residence (standard 3BR from $2.10M at launch, now sold out).
The question is never which condo has the best PSF. It is which condo gives you the best product — the best layout, the best room sizes, the best exit story — at YOUR budget.
Sources: URA REALIS — resale transaction data for all developments cited. Prices reflect transactions from Q1 2024 to March 2026. Floor areas verified against developer floor plans from sales brochures. Room size estimates confirmed from layout dimensions — not estimated from total sqft. Coordinate pins are approximate — verify on Google Maps.
Published by MJ Review Homes (reviewhomes.sg) | PropNex Realty Pte Ltd | Shaik Amar R058640H | Myra Jalil R058979B | +65 9690 5440 | +65 9738 3705
Tampines Central — CityLife and The Trilliant
Tap or hover over any dot for details
Tampines East — The Eden and Treasure
Tap or hover over any dot for details
Avenue 8 Corridor — Q Bay, Santorini, Waterview, Tapestry, Arc, Alps
Tap or hover over any dot for details
Tampines North — Pinevale
Tap or hover over any dot for details
Multiple — Frequently Asked Questions
Should I buy a 3-bedder in Tampines?
Tampines is one of the strongest HDB upgrader markets in Singapore. The 3-bedder resale market ranges from $1.26M to $2.0M across 11 condos, with options in every budget band. Prices are appreciating across the board, driven by new launch benchmarks and the upcoming Cross Island Line. The right pick depends on your budget band, room size needs, and how long you plan to hold.
What is the cheapest 3-bedroom condo in Tampines?
Santorini's compact 915 sqft 3-bedder starts from around $1.26M — the cheapest entry point. Arc at Tampines offers 958 sqft from $1.27M as another entry option. However, common rooms at this size measure around 7.5-8 sqm. For a more livable 3-bedder, The Eden offers 1,195-1,249 sqft from $1.64M with 10-12 sqm common rooms, or Pinevale offers 1,281-1,389 sqft from $1.31M.
How much does a 3-bedroom condo cost in Tampines?
3-bedroom condos in Tampines range from $1.26M (Santorini, 915 sqft) to $2.01M (CityLife, 1,130 sqft). The most competitive budget band is $1.5M-$1.75M, where you can choose between newer compact layouts (Treasure, Tapestry) and older spacious ones (Santorini, Waterview, Pinevale, The Eden).
Is Treasure at Tampines worth buying?
Treasure at Tampines is the newest mass-market resale option in Tampines. The 915 sqft 3-bedder (Type C6) trades at $1.50M-$1.68M with common rooms around 8 sqm. A larger 1,033 sqft 3-Bedroom Premium (Type C9P) also exists at $1.84M-$1.98M with common rooms around 9-9.5 sqm. Treasure wins on newness and facilities but loses on space — older condos offer 200-400 extra sqft for the same money.
Which Tampines condo has the best resale value?
CityLife @ Tampines and The Trilliant have shown the strongest price resilience, sitting in Tampines Central near the MRT interchange. Pinevale has appreciated the most in percentage terms — from around $956 psf in 2024 to $1,167 psf in late 2025. The Eden and Waterview are the lowest hanging fruits with the most room to appreciate relative to new launch benchmarks.
Which Tampines condo has the best floor plan?
Based on our analysis of every 3BR floor plan: Waterview's Type D1 (1,184 sqft 3BR+Study) and Type C2 (1,119 sqft) offer the best room proportions. The Eden's Type E (1,249 sqft) delivers 11-12 sqm common rooms at the lowest PSF. CityLife's layouts are efficient with dual balconies for cross-ventilation. Avoid Trilliant's A1 (872 sqft) with 7.5 sqm common rooms, and watch out for Arc's curved master bedrooms.
Should I buy a new launch or resale condo in Tampines?
New launches like Parktown Residence launched 3-bedders from $2.1M (standard 3BR now sold out, remaining 3BR Premium from $2.578M) and Pinery Residences from $1.93M — significantly above resale. If your budget is below $1.8M, resale gives you more space per dollar. If you can stretch to $1.93M+, compare against our Pinery Residences and Parktown Residence reviews.
Is Pinevale a good buy in Tampines?
Pinevale offers the most space per dollar in Tampines — 1,335-1,389 sqft for $1.55M-$1.62M. The trade-off is age: TOP 1999, with about 72 years remaining on a 99-year lease. It has appreciated strongly (from $956 psf in 2024 to $1,167 psf in late 2025), but factor in $80K-$120K for renovation. Pinevale is a lowest hanging fruit — older developments with proven layouts trading well below the floor set by new launches.
What is the PSF for condos in Tampines?
PSF in Tampines ranges from $979 (Pinevale, 2024) to $1,916 (Treasure at Tampines). But PSF alone is misleading — a $1,100 psf unit at 1,335 sqft costs less than a $1,836 psf unit at 915 sqft. Always compare total price first.
Is The Eden at Tampines a good buy?
The Eden is a privatised EC (TOP 2003) with 1,195-1,249 sqft 3-bedders at $1.64M-$1.78M — roughly $1,200-$1,400 PSF. Common rooms measure 10-12 sqm with natural marble flooring. At 20-30% below comparable PSF at Waterview and Santorini, The Eden has the most upside potential in the district. The trade-off is age (23 years) and facilities that feel dated compared to newer condos.
What are the best resale condos in Tampines for families?
For families needing real bedroom sizes: The Eden (1,195-1,249 sqft from $1.64M) and Pinevale (1,281-1,389 sqft from $1.31M) offer 10-12 sqm common rooms where every bedroom fits a queen bed, wardrobe, and desk. Santorini's 1,141 sqft and Waterview's 1,119-1,184 sqft offer 9.5-10 sqm common rooms. Avoid compact 915-936 sqft layouts if you have school-age children who need study space.
What is the Avenue 8 oversupply problem in Tampines?
Six condos cluster along the Tampines Avenue 8 corridor: Waterview, Santorini, Q Bay, The Tapestry, Arc at Tampines, and Alps Residences. When multiple sellers list simultaneously, buyers comparison-shop across all six within a 5-minute walk. This supply concentration limits pricing power at exit — sellers who overprice sit on the market while buyers walk next door. What wins in an oversupply corridor is your entry price and your layout. The best layouts move regardless of market conditions — a well-priced unit with proper room sizes will always find a buyer before a poorly laid-out unit at the same price.
When do Tampines new launch condos TOP?
Pinery Residences and Parktown Residence are both expected to TOP in 2030. Resale condos like Treasure at Tampines (TOP 2023), CityLife (TOP 2016), and The Trilliant (TOP 2015) are already completed and ready for immediate move-in.
Share
Related Reviews
Join Our Community
Real-time condo discussions, new review alerts, and data drops. No fluff.
Join Our Community
